Apartamentos
Gran Vía

Equipamiento

– Fecha Marzo / Abril 2016
– Cliente Fergo Galicia
– Tipo Contract

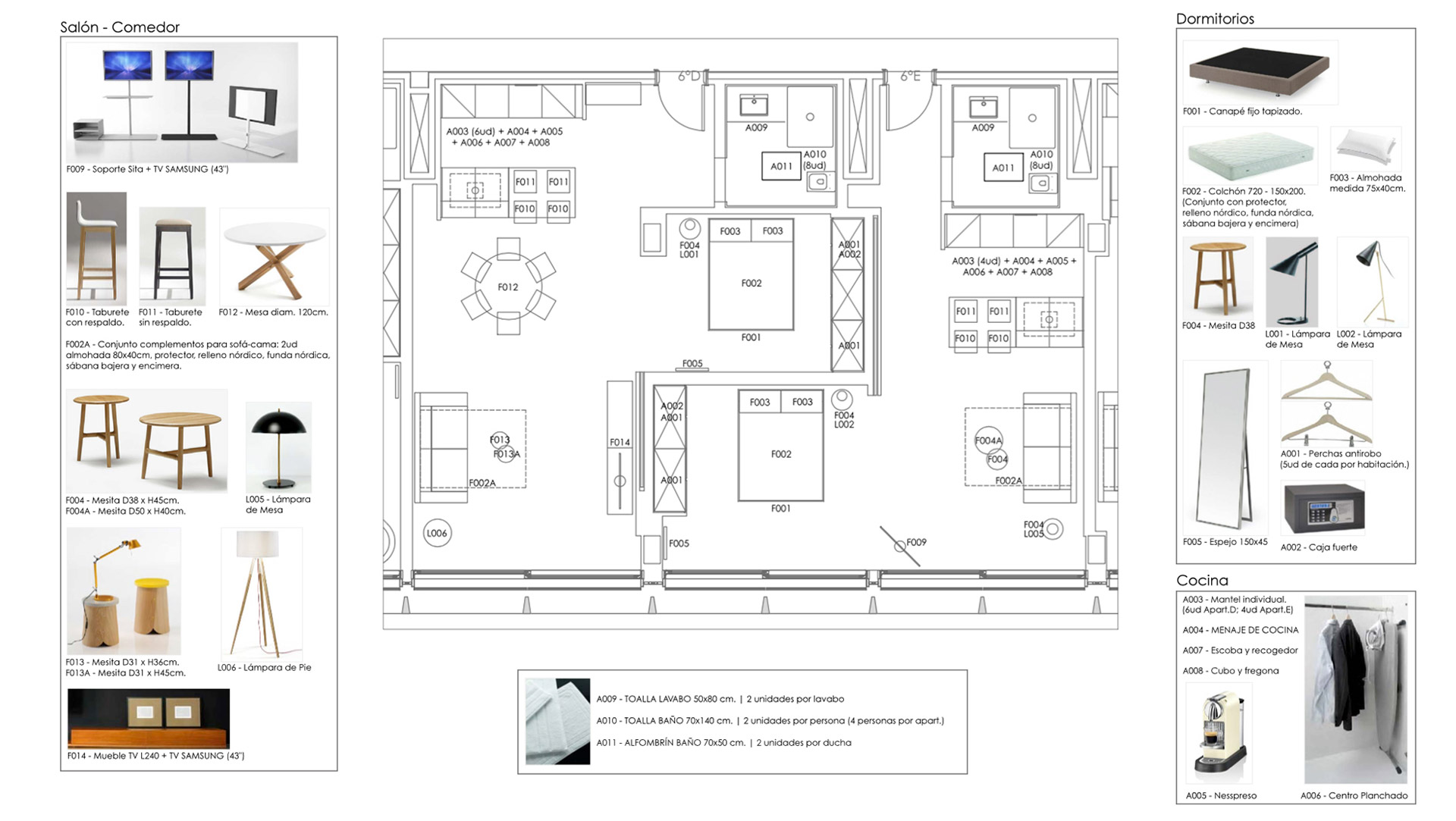
El proyecto que nos ocupa consiste en el equipamiento de 13 apartamentos en el emblemático edificio madrileño, diseñado por Rafael de la Hoz, situado en Gran Vía 48.
Como responsable de este proyecto en tattoo. me encargo de trabajar con la propiedad y con sus distintos colaboradores, como Galería Vilaseco entre otros, para coordinar el equipamiento de trece de sus apartamentos entre las plantas sexta y séptima.

En estos apartamentos explotados por la empresa Spain Select se busca un estilo moderno con un pequeño toque clásico y elegante que genera un ambiente neutro y cuidado en el que todos sus huéspedes se puedan sentir tan cómodos como en su propia casa.

Related Projects